
Immense condo au dernier étage d'un immeuble au cachet historique. La facade a conservé de nombreux détails architecturaux anciens. A l'intérieure, boiseries, cimaises, corniches, bois chaleureux, plafonds hauts - tout y est. Deux chambres et deux bureau
-
| Dimensions | |
|---|---|
| Profondeur du bâtiment | 20 |
| Superficie habitable | 111 MC |
| Façade du terrain | 0 |
| Profondeur du terrain | 0 |
| Superficie terrain | 0 |
| Frais et taxes | Mensuel | Annuel |
|---|---|---|
| Taxes municipales | 219 $ | 2 629 $ |
| Taxes scolaires | 24 $ | 286 $ |
| Frais de copropriété | 481 $ | 5 772 $ |
| Total | 724 $ | 8 687 $ |
| Évaluation municipale | |
|---|---|
| Année | 2026 |
| Terrain | 168 000 $ |
| Bâtiment | 270 100 $ |
| Total | 438 100 $ |
| Dépenses / Énergies | Mensuel | Annuel |
|---|---|---|
| Électricité | - | - |
| Eau | - | - |
| Total | - | - |
+
+
| Mode de chauffage | Plinthes électriques, Radiant |
| Approvisionnement en eau | Municipalité |
| énergie pour le chauffage | électricité |
| équipement disponible | Balcon privé, Thermopompe murale |
| Appareils en location | Chauffe-eau |
| Restrictions/Permissions | Location court terme non permise |
| Salle de bains/salle d'eau | Douche indépendante |
| Services disponibles | Cour |
| Système d'égouts | Municipal |
| Zonage | Résidentiel |
+
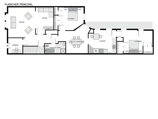
| Pièce | Bureau à domicile |
| Niveau | 3 |
| Dimensions | 8.1x7.6 P |
| Plancher | Bois |
| Détails | accès balcon avant |
| Pièce | Salon |
| Niveau | 3 |
| Dimensions | 15.9x14.0 P |
| Plancher | Bois |
| Pièce | Bureau à domicile |
| Niveau | 3 |
| Dimensions | 11.6x9.2 P |
| Plancher | Bois |
| Détails | pièce double dans salon |
| Pièce | Salle de bains |
| Niveau | 3 |
| Dimensions | 5.5x11.0 P |
| Plancher | Céramique |
| Détails | plancher chauffant |
| Pièce | Chambre à coucher principale |
| Niveau | 3 |
| Dimensions | 12.3x13.1 P |
| Plancher | Bois |
| Pièce | Salle à manger |
| Niveau | 3 |
| Dimensions | 12.2x11.8 P |
| Plancher | Bois |
| Pièce | Cuisine |
| Niveau | 3 |
| Dimensions | 12.4x14.9 P |
| Plancher | Couvre-sol souple |
| Pièce | Chambre à coucher |
| Niveau | 3 |
| Dimensions | 12.4x19.4 P |
| Plancher | Bois |
+
| cuisinière, réfrigérateur, lave-vaisselle, laveuse, sécheuse. Tringles et rideaux. La bibliothèque en tuyau dans le salon. Bibliothèque en bois dans la 'salle à manger'. |
+
| Pour les amoureux du patrimoine : Répertorié dans "les |
| maisons anciennes de cité Maisonneuve". |
| Près de deux lignes d'autobus dont le SRB Pie-IX, de parcs, |
| de la promenade Ontario, du marché Maisonneuve, de la |
| maison de la culture, de la bibliothèque et de la piscine, |
| des parcs Maisonneuve, Morgan, Lalancette. |
| épiceries, quincaillerie, banque, caisse, restos, saq, |
| pharmacie, CLSC, à proximité. |
| Piste cyclable Notre-Dame. |
| Près de tous les services de la promenade Ontario |
| (piétonne l'été) mais sans le bruit... Environnement calme |
| et tranquille. |
-
+
+